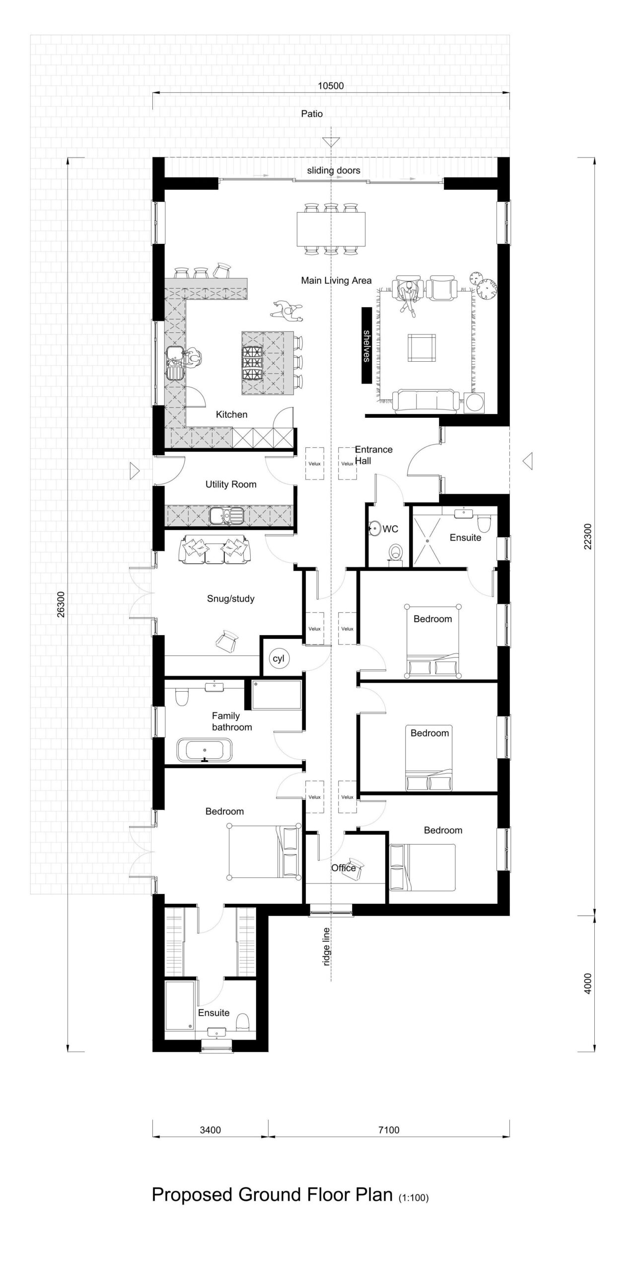
The Vision
To build a house with a budget similar to that of a house in our village. The house should be a similar size or bigger, similar quality or better. At least 3 bedrooms and space for us both to work from home.
Budget Progress
Original project target
New project estimate
Spend
